Harte Kante, weicher Kern

Hotels an der Wolframstraße, Stuttgart

Entwicklung eines Hotelparks mit Studentenapartments und einer Kindertagesstätte an der Wolframstraße in Stuttgart – In unmittelbarer Nähe zum S21 Areal wird auf dem zentralen Eckgrundstück mit starker Topografie ein Gebäudekomplex für zwei Hotelketten im Drei-Sterne-Segment sowie eine Kindertagesstätte und ein Studentenapartmenthaus entwickelt. Um der besonderen städtebaulichen Situation Rechnung zu tragen, soll eine architektonisch anspruchsvolle Lösung mit verbindendem Charakter entstehen. Der Entwurf reagiert mit einer angemessenen Dichte und Struktur.

Abschluss und Fortführung – Städtebauliches Konzept

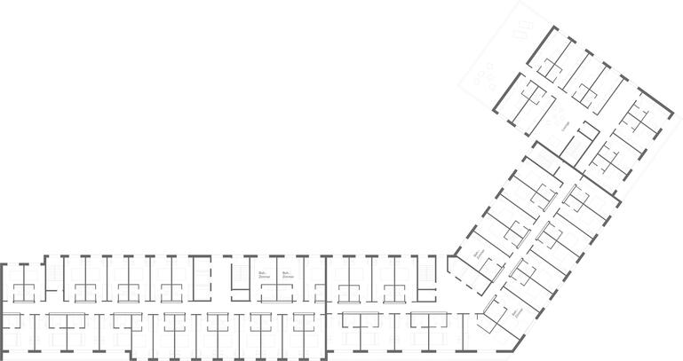
Das Grundstück markiert am Budapester Platz einen prominenten Endpunkt der neuen Innenstadterweiterung durch Stuttgart 21 und bildet den Übergang zum nordöstlich anschließenden Mischgebiet um den Pragfriedhof. Das Gebäudeensemble setzt eine klare städtische Kante als Abschluss für die Neuentwicklungen und schirmt damit die rückseitigangrenzende, aufgelockerte Bebauung mit schützender Geste von der stark frequentiertenWolframstraße ab. Die straßenbegleitende Bebauung entlang der Wolframstraße wird aufgenommen und in Form einer geschlossenen Bauweise bis in die Nordbahnhofstraße klar fortgeführt. Der offene Abschluss im Osten definiert den einzigen Zugang ins Innere des Areals und vermittelt zur kleinteiligeren Nachbarbebauung.

Urbanität und Freiraum – Verteilung der Baumassen

Die Konzentration der Gebäudevolumen entlang des Straßenraums folgt dem städtebaulichen Konzept und stärkt den urbanen Charakter. 6-8 geschossige Gebäude vermitteln zwischen den angrenzenden Nachbarn und der prominenten Ecksituation. Im Gegenzug wird der rückwärtige, nördliche Teil des Baufelds weitestgehend frei gehalten. Hier entsteht ein geschützter durchgrünter Freiraum im Innenbereich, der die topografische Besonderheit des Geländes, eine sehr steile, dicht bewachsene Hangkante, als prägendes Element in die Konzeption integriert. Die Höhendifferenz von mehr als 10 m wird hier durch ein Anheben des Niveaus entschärft. Das Grün des bewaldeten Hangs verbindet sich mit dem Gründeck, in das die Kindertagesstätte als 2-geschossiger Flachbau eingebettet wird, und vermittelt topografisch zwischen der höher gelegenen Bestandsbebauung im Norden und der Neuentwicklung entlang der Straßenkanten. Das angehobene Gründeck überdacht die ebenerdige, gemeinschaftliche Parkierungsanlage und schafft gleichzeitig eine deutlich verbesserte Belichtung für Kita und Freibereich.

„Das neu enstehende Quartier benötigt ein starkes Rückgrat.“

Kompakte Volumen – Klare Verhältnisse

Die konsequente städtebauliche Anordnung der Gebäudevolumen als geschlossener Blockrand entlang der Wolfram- und Nordbahnhofstraße schafft sehr kompakte Volumen und eine ökonomische Hüllflächengeometrie. Beide Aspekte bilden eine hervorragende Grundlage für ein effizientes und sinnvolles Energiekonzept. Die geschlossene Bauweise ermöglicht zudem eine einfache Zusammenschaltung der einzelnen Gebäude hinsichtlich einer effizienten, zentralen Energieversorgung, beispielsweise durch ein BHKW. Ergänzt durch eine hochwertige Dämmung der Außenhülle mit geringem Glasflächenanteil sowie einer Lüftungsanlage mit Wärmerückgewinnung lassen sich geringe Betriebskosten realisieren.
Andererseits ermöglicht die einfache Gliederung der additiv aneinandergereihten Gebäude eine klare Aufteilung der Flurstücke und sorgt damit für klare Eigentumsverhältnisse. Die städtebauliche Anordnung ist zudem weitgehend nutzungsneutral. Das erhöht die Flexibilität sowohl in der Nutzung der Gebäude als auch auf städtebaulicher Ebene und unterstützt damit einen ganzheitlich nachhaltigen Ansatz. Die Staffelung der beiden letzten Obergeschosse ermöglicht eine maximale Grundstücksausnutzung unter angemessener Berücksichtigung der Bestandsbebauung.

Zugang und Adresse

Die beiden Hotelgebäude bilden das prominente Gegenüber für die Neubauten von Stuttgart 21 und orientieren daher klar zur Wolframstraße. Beide Häuser werden von dieser Seite über Vorfahrt und Haupteingang erschlossen und tragen durch großzügig geöffnete Erdgeschosszonen einen stark öffentlichen Charakter. Die Eingänge werden durch Vordächer und Fassadeneinschnitte zusätzlich betont. Das Studentenwohnheim liegt an der ruhigeren, weniger prominenten Nordbahnhofstraße. Der Zugang erfolgt über einen Stich auf der Ostseite, der auch das Gründeck mit der Kita erschließt.

Einzelidentität und Gesamterscheinung

Die Gebäude reagieren mit regelmäßig streng gegliederten Lochfassaden auf die urbane Situation am Budapester Platz und an der Wolframstraße. Die durchgehende Materialität des Ziegels für die beiden Hotelgebäude und die plastische Ausformung der Fensterleibungen bilden ein gemeinsames Thema. Dies verleiht der Gesamtfigur die notwendige Kraft und prägt eine homogene, hochwertige Gesamterscheinung, während ein differenzierter Umgang mit den Leibungen in Form von Vor- und Rücksprüngen sowie unterschiedliche Fensterformate die Einzelidentitäten der Häuser unterstreichen und individuelle Adressen schaffen. Das Motiv der Lochfassade setzt sich beim Studentenwohnheim fort, die Putzfassade sorgt für ein graduelle Differenzierung auf Materialebene. Die Kindertagesstätte tritt durch ihre Lage auf dem Gründeck im urbanen Kontext nicht in Erscheinung und wird thematisch dem Freiraum zugeordnet. Eine Dachbegrünung und die Holzfassade unterstützen diesen Charakter.

Verkehr und Parkierung

Die Vorfahrten beider Hotels befinden sich verkehrsgünstig an der Wolframstraße. In direkter Fortsetzung gelangt man in die Gemeinschaftsgarage unter dem Gründeck, über die auch die Anlieferung erfolgt. Die Stellplätze sind auf zwei leicht zueinander versetzten Ebenen angeordnet. Dies ermöglicht einen ebenerdigen, barrierefreien Zugang in beide Hotellobbys. Eingeschnittene Tiefhöfe zwischen Gründeck und Gebäude sorgen für eine natürliche Belichtung und Belüftung der Garage und schaffen Orientierung für die Gäste. Die Bepflanzung der Tiefhöfe gliedert den Bereich in prominente Gastzugänge und Anlieferungszonen.

Projektinformationen

Ort

Stuttgart, Deutschland

Team

Hadi Tandawardaja

Tobias Bochmann

in Kooperation mit

Fink+Jocher Architekten

Verfahrens-/Projektart

Qualifizierungsverfahren

Leistungen

Vorentwurf

Bearbeitungszeitraum

2013

Fertigstellung

Wettbewerbe

Qualifizierungsverfahren Wolframstraße Stuttgart